Rénovation Trudaine : Le début de l’aventure
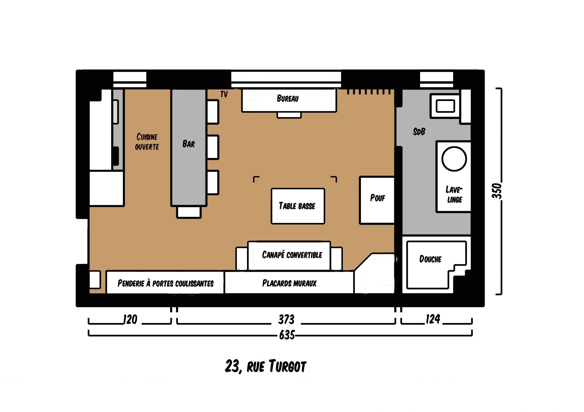
Au début il y a avait un logement sans grâce, un studio tout nu et de 22 m2 dans le quartier de Trudaine.
Bien sûr, nous avons l’œil, et nous savions que son potentiel lui permettait cette transformation vers la beauté et le luxe.
Nous avons acheté ce bien en février 2018, et dessiné les plans d’aménagement.

Les travaux devraient commencer début Mars…nous vous ferons part de cette mutation, étape par étape !




